西福原7丁目戸建て

1,980万円

鳥取県米子市西福原7丁目8-10

境線「後藤」駅徒歩11分

境線「富士見町」駅徒歩28分

価格
1,980万円
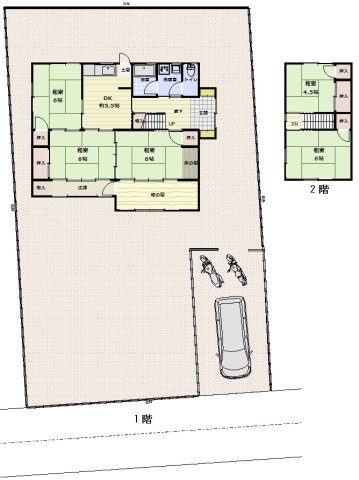
間取り/建物面積
5DK/113.99㎡
所在地
鳥取県米子市西福原7丁目8-10
築年
1976年6月(築49年)
駐車
有(1台)(屋根有)
交通

境線後藤」駅 徒歩11分

境線富士見町」駅 徒歩28分

西福原7丁目戸建ての基本情報

物件名
西福原7丁目戸建て
価格
1,980万円
建物面積
113.99㎡
土地面積
106.48坪(352.00㎡)
築年月
1976年6月(築49年)
総戸数
1戸
所在地
鳥取県米子市西福原7丁目8-10
交通

境線後藤」駅 徒歩11分

境線富士見町」駅 徒歩28分

西福原7丁目戸建ての詳細情報

設備条件
  • 閑静な住宅地
設備(その他)
    -
駐車場/月額
有(1台)(屋根有)/-
土地権利
所有権
国土法届出
不要
用途地域
第一種中高層住居専用
取引態様
一般媒介
引渡し
相談

西福原7丁目戸建てで募集中の物件

  1. 34.48坪 (113.99㎡)

    1,980万円(57.42万円/坪)

周辺施設

  • ザ・ダイソー DAISO ニトリ米子店の画像

    その他

    ザ・ダイソー DAISO ニトリ米子店

    446m(6分)

  • ニトリ米子店の画像

    インテリア

    ニトリ米子店

    446m(6分)

  • ザクザク東福原店の画像

    ドラッグストア

    ザクザク東福原店

    497m(7分)

  • 米子西福原郵便局の画像

    郵便局

    米子西福原郵便局

    526m(7分)

  • ダイレックス 東福原店の画像

    ディスカウントショップ

    ダイレックス 東福原店

    552m(7分)

  • 米子市立福米西小学校の画像

    小学校

    米子市立福米西小学校

    598m(8分)

  • 福米保育園の画像

    保育園

    福米保育園

    640m(8分)

近隣の物件

  1. 米子市河崎

    2LDK (69.02㎡)

    680万円

  2. 米子市立町2丁目

    4K (96.65㎡)

    880万円

  3. 米子市東町

    4SLDK (190.78㎡)

    3,480万円

  4. 米子市新開3丁目

    4LDK (115.24㎡)

    1,980万円

西福原7丁目戸建て

お気軽にお問い合わせください

無料お問い合わせ

株式会社 佐嶋工務店 不動産部

0859-30-3211

9:00~18:00

(休:水曜日・祝日)